Amport House Project
Andover SP11 8BG
AP Hotels Group V2 Ltd 02461070
(Name Change from Nortels Ltd 02461070)
Contact for Quotes
Ananda Paul
Woodlands Hotel Bartley Road Southampton SO40 7GN
Email ananda@aprental.co.uk
Mobile 07 888 666 892
Click below to download
PDF Design Statement,
PDF Planning Permission,
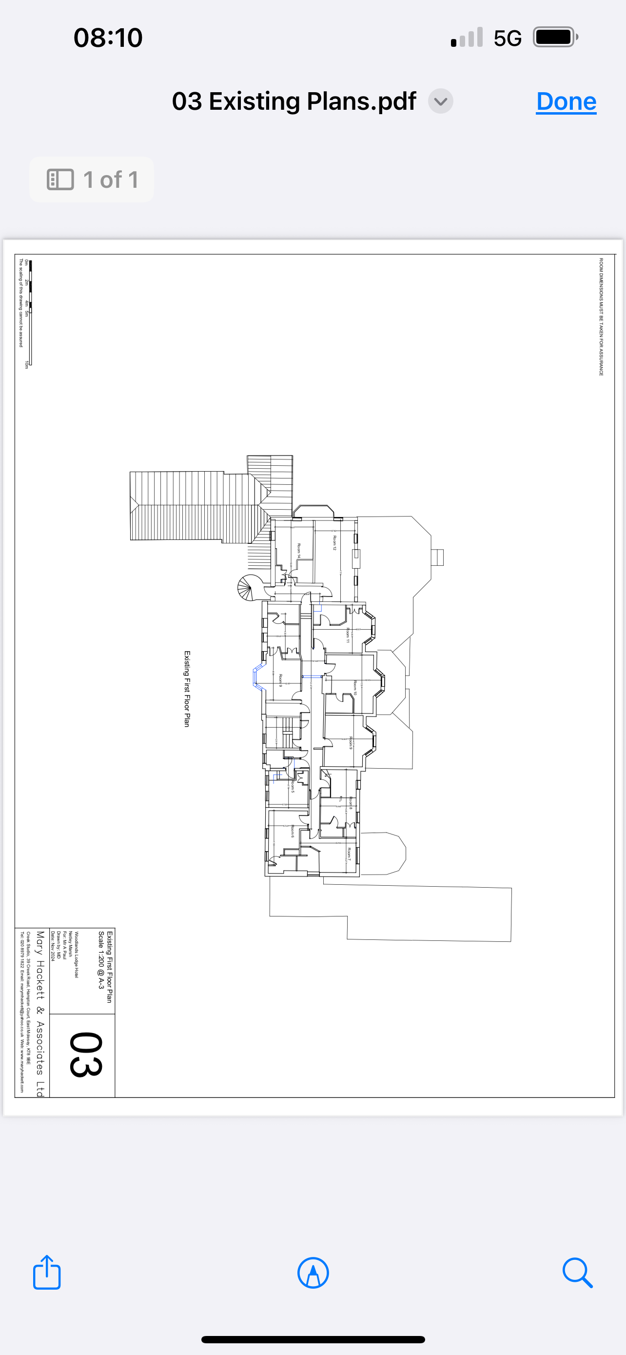
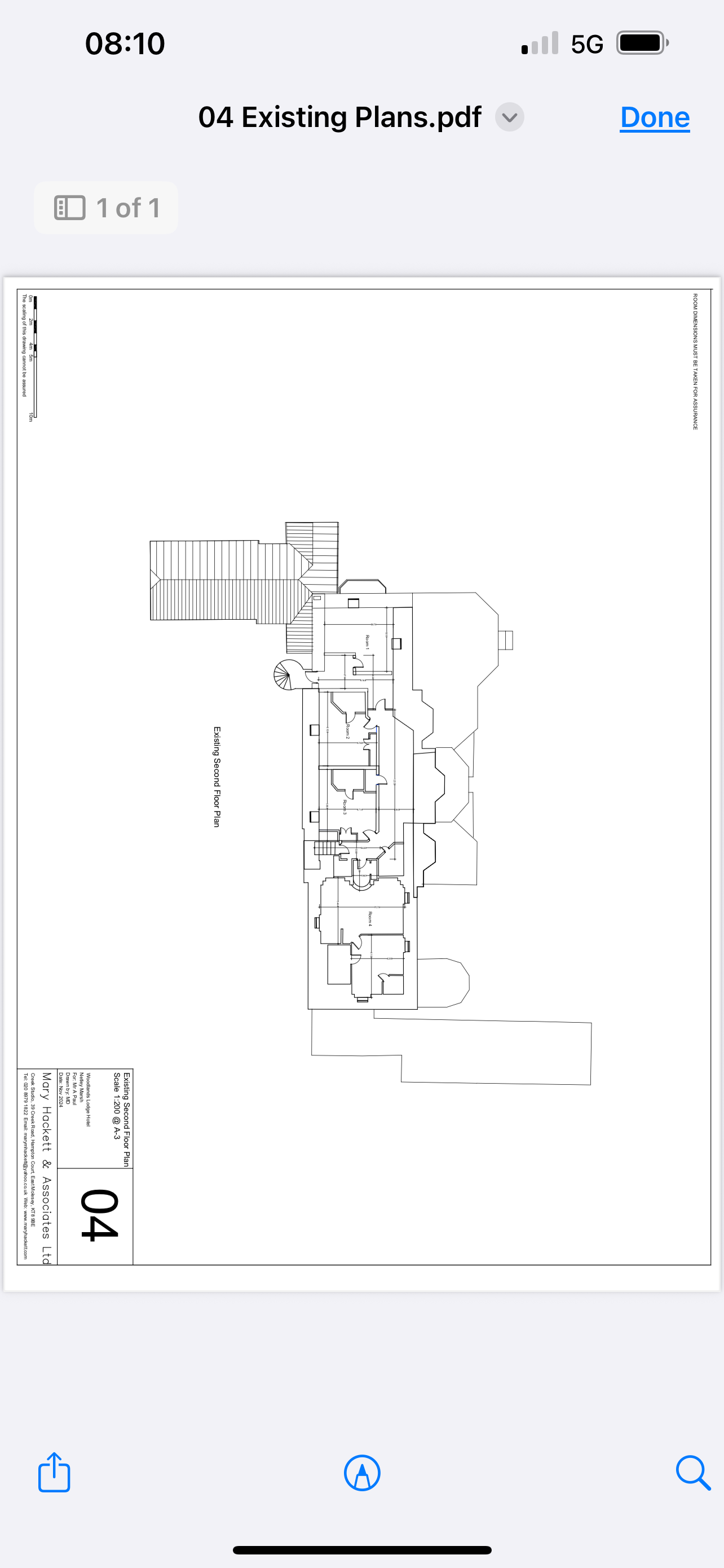
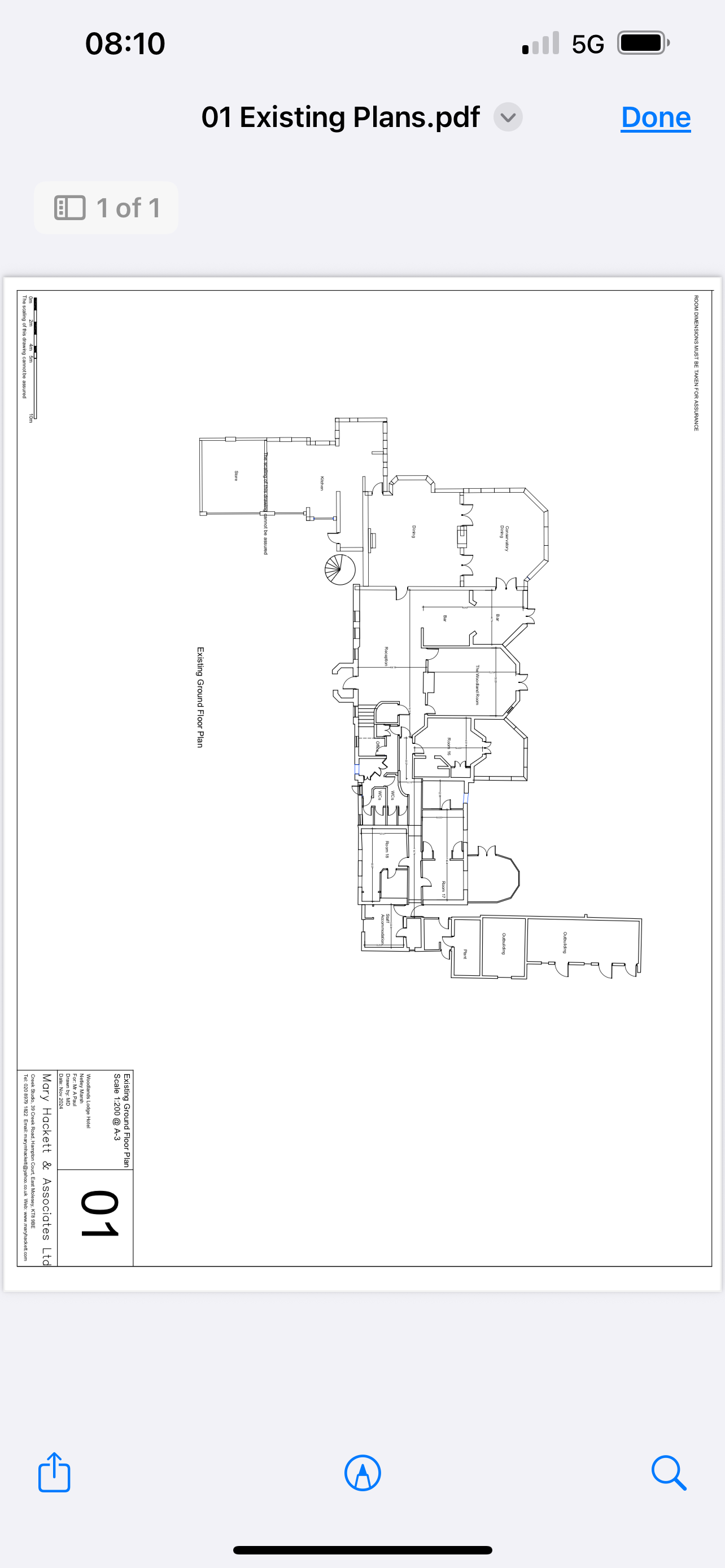
PDF Existing floor Plans
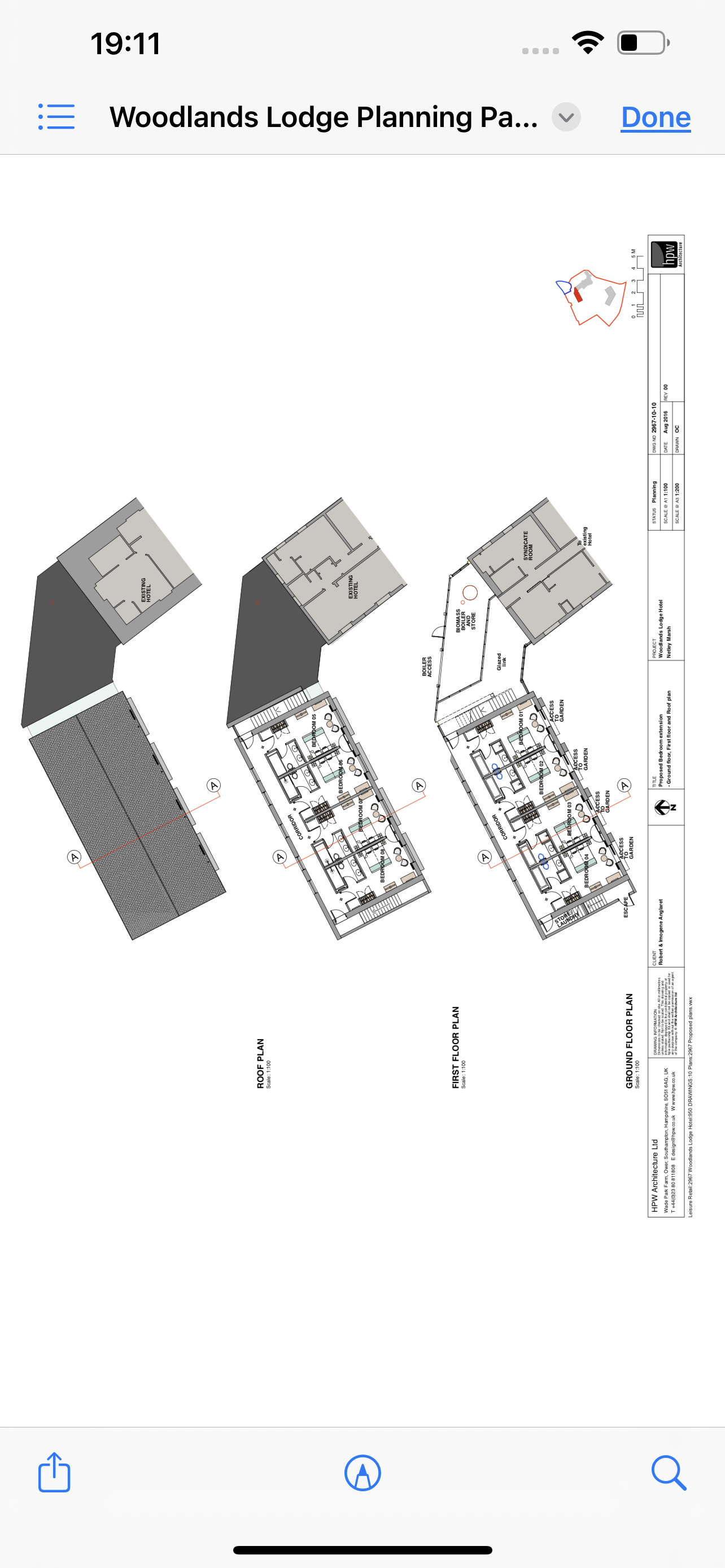
PDF Proposed floor Plans
Timelines
- Offer accepted 23/03/2025.
- Completion by 1st week of January 2026.
- Hotel opening date of 1st week of March 2026
Phase 1 to compete March 2026.
- Release ground floor dining and public rooms including main hallways.
- Release first 5 Bedrooms.
- Recommission Oil Boiler for hot water and heating.
- Install Back Up Gas Boilers.
- Release Breakfast and Dining with operational kitchen.
Phase 2 to complete June 2026
- Release a further 20 Bedrooms and 4 Apartments requiring no structural works only refurbishment.
- Recommission water pressure for all bathrooms, heating and hot water.
Strategy
- Offering 50% discount for all rooms and suites for first 6 months.
- Room price £100 plus vat, Suites £200 plus vat refurbished and furnished to 4 star standards.
- Dog Friendly Rooms available in New Wing Only
- Wedding Hire £15K for exclusive event on first 6 months 40 guests reception welcome drink, morning breakfast, evening buffet, next day breakfast exclusive hire of entire hotel including 20 Bedrooms and 3 Suites.
- Bookings to be taken from existing Woodlands reservations system linked to Booking.com, Expedia, Hotels.com, Rezlynx.
- Current Woodland management to assist with setting up sister hotel.
Planning Proposal for Spa and 8 Additional Bedrooms.
Woodlands Hotel Project
Woodlands Hotel Bartley Road Southampton SO40 7GN
AP Hotel Group Ltd 0872 3115
Name Change from Wioleta Ltd 0872 3115
Contact for Quotes
Ananda Paul
Woodlands Hotel Bartley Road Southampton SO40 7GN
Email ananda@aprental.co.uk
Mobile 07 888 666 892
Click below to download
PDF Existing floor Plans
PDF Proposed Spa and 8 Bedrooms
Timelines
- Purchased 24/11/2024
- Planning application to be lodged October 2024 for Spa , 8 Bedrooms and Bridal House new build.
- Spa to commence 2026
- Bridal House to commence 2026
- Bedroom x 8 to commence 2026
- Refurbished internal and external hotel to 4 Star Boutique Standards
- Refurbished Restaurant, Bar, Wedding Room and lanscapted gardens.
- 10% increase in room reservations and functions activity
- Hotel now open to non residents with live entertainment
- Revitalised Restaurant Menu for all seasons.
Phase 1 Completed
- Refurbished internal and external hotel to 4 Star Boutique Standards
- Refurbished Restaurant, Bar, Wedding Room and lanscapted gardens.
- 10% increase in room reservations and functions activity
- Hotel open to non residents with live entertainment, creating new revenue streams.
- Revitalised Restaurant Menu for all seasons.
- Staffing and recruitment increase by 20% offering higher levels of service.
Phase 2 to complete 2026
- Develop, build and release a further 8 Bedrooms Spa and Bridal Suite with private hot tub.
- Recommission water pressure for all bathrooms, heating and hot water.
- Install Outside Bar and Restaurant and Fountain Courtyard approaching Bridal Suite.
- Apply for 4 Star Rating
Strategy
- No change in room rates but upgrades bedroom furnishings, install telephone room service, upgrade internally and externally to 4 star boutique standards
- Remain dog friendly and encourage more non resident income stream with monthly live music events.
External Refurbishment including reception and bar
Proposed Bridal Suite and Outdoor Kitchen and Bar
7 Thornhill Road Surbiton
2 x 3 bed new builds utilising air source heat pumps, underfloor heating, and increased insulation to meet 2050 government target of low carbon efficient homes...
This is paragraph text. Click it or hit the Manage Text button to change the font, color, size, format, and more. To set up site-wide paragraph and title styles, go to Site Theme.







































































































